Budapesti Üzletünk

Budapest, 1106 Jászberényi út 43.

+3630 556 8018

[email protected]

H-P : 10:00-18:00 | Szo: 10:00-14:00 | V: ZÁRVA

Budaörsi Üzletünk

Budaörs, 2040 Törökbálinti utca 23.

+3630 566 4882

[email protected]

H-P : 9:00-17:00 | Szo: 10:00-14:00 | V: ZÁRVA

Arezzo design Sote fali tükör 120x80 cm, króm AR-165805 - FüArezzo design Sote fali tükör 120x80 cm, króm AR-165805 - Fü
ar-1658051
ar-1658052
ar-1658053
ar-1658054

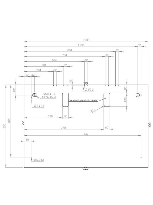
Arezzo design Sote fali tükör 120x80 cm, króm AR-165805

Fogyasztói ár53880,00 Ft
Customer Reviews